We turn your design intent into clean, buildable files — accurate assemblies, hardware, CNC-ready parts, and clear shop drawings. Fast turnaround, minimal back-and-forth.
Precision CAD Studio is a Cabinet Vision drafting partner for cabinet and joinery manufacturers. We turn your design intent into clean, production-ready files — accurate assemblies, hardware, CNC-ready parts, and clear shop drawings.
Based on the Gold Coast and working with clients across Australia, we're built for speed and clarity:
Whether you need overflow drafting, ongoing support, or help standardising your libraries, we'll fit into your workflow and keep production moving.
Work With UsProfessional Cabinet Vision drafting for residential and custom joinery projects. Production-ready drawings and files your workshop can build from immediately.
Full cabinet and joinery layouts, assemblies, hardware, machining, part detailing, workshop drawings and production outputs.
Extra capacity when you're slammed. Flexible weekly or monthly support that works with your naming and standards.
Quick turnarounds on client changes. Clean change tracking and updates to keep projects moving without rework.
Reliable capacity you can count on week to week. Scale up when you're busy, scale back when things are quiet — no lock-in.
Pick the level that suits your project. Every tier is production-ready — the difference is in the depth of detail and CAD output.
Clean design-intent elevations for client approvals and quoting. No full CAD — ideal when you need layouts and visuals fast.
Full production-ready Cabinet Vision drafting. Standard joinery with all the detail your workshop needs to build without questions.
High-detail drafting for complex, custom, and curved joinery. Everything in Level 2 plus radius cabinetry, deeper specification, and full shop drawing packages.
Not sure which level suits your project? Send through your plans — we'll recommend the right fit and quote accordingly.
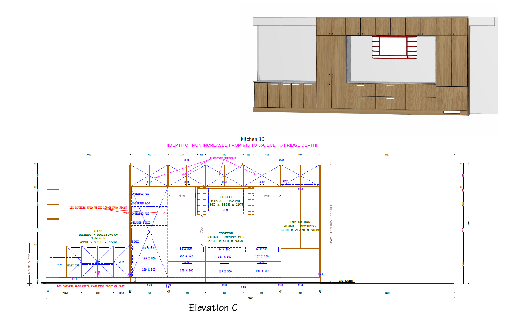
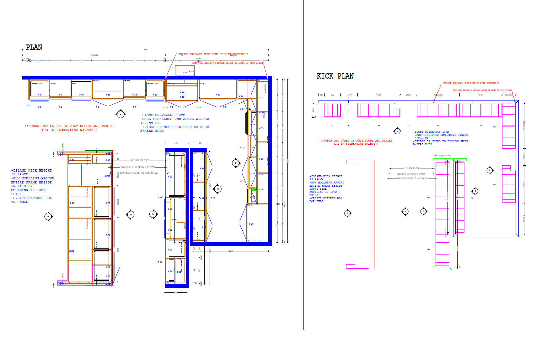
A selection of recent Cabinet Vision drafting projects — kitchens, wardrobes, and custom joinery across Australia.









Get in touch to see examples similar to your project type.
Tell us what you're building and what you need drafted. We'll come back with any clarifying questions, a turnaround estimate, and a quote.